跳到主要內容
:::
網站導覽
下載清單
網站導覽
首頁
藏品查詢
分類瀏覽
年代
人名
類別
典藏單位
年代
人名
類別
典藏單位
年代瀏覽
人名瀏覽
類別瀏覽
典藏單位瀏覽
關於我們
圖像授權說明
典藏品開放統計
請輸入關鍵字
下載清單
:::
藏品資訊
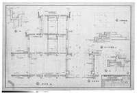
電氣設備.貳拾壹~參拾柒層照明.插座平面圖
原始題名:南國家鄉F2大樓新建工程 水電.消防設備工程
建築師:陳其寛
案名:南國家鄉F2大樓新建工程
建築師事務所:陳其寛聯合建築師事務所
原件類型:描圖紙
圖說內容屬性:設備圖
文物分類:圖書文獻類\建築圖
尺寸描述:856mmX536mm
取得方式:捐贈
館藏編號:CCCK56125038
內部編號:82050
典藏單位:臺博館-建築圖
詳細資料
國家文化記憶庫
已瀏覽清單
:::
版權所有
文化部
隱私權及安全政策宣示
著作權聲明
總機電話:(+886)-2-8512-6000 地址:24219新北市新莊區中平路439號南棟13樓
意見詢問:歡迎透過電話的方式與我們聯繫。 我們將以最快的速度為您服務。
藏品總筆數
1509146
文化部典藏網功能服務滿意度:
非常喜歡
喜歡
尚可
網站資料內容為典藏機關自行維運,藏品資料欄位,若尚未著錄者,不予呈現。
瀏覽人次
39881042