跳到主要內容
::: 藏品資訊
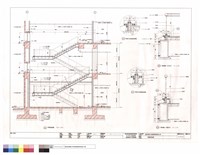
一.室內粉刷表、二.浴廁平面剖面、三.位置圖
登錄號:NWDH16583005的圖片(NWDH16583005_A001.jpg)(CC BY-NC),第1張,共1張
CC BY-NC(姓名標示-非商業性)    圖檔加入下載清單圖示
原始題名:國立台灣大學農藝學考種室新建工程
建築師:王大閎Wang,Da Hong
繪圖者:C. S. Lai
案名:農藝系考種室新建工程
建築師事務所:大洪建築師事務所
原件類型:書冊
圖說內容屬性:建築圖
文物分類:圖書文獻類\建築圖
尺寸描述:800x580
取得方式:商借
原收藏者:國立台灣大學
藏品描述:1.室內粉刷表, 2.浴室暨女廁所平面圖 1:30, 3.男廁平面圖 1:30, 4.浴廁剖面圖 1:30, 5.男廁剖面圖 1:30, 6.位置圖暨現況圖, 7.清水磚砌法詳圖 1:30, 8.掛藏室掛具暨軌道詳細共2張圖

館藏編號:NWDH16583005

內部編號:1553
典藏單位:臺博館-建築圖
已瀏覽清單
藏品(簸箕)的圖片